3 Bedroom 1117 Sq Ft Home Single Storied Kerala Home Design And Floor Plans 8000 Houses
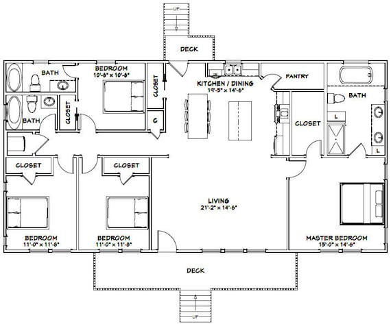
Entertaining is a snap in the roomy kitchen with a dining nook and a serving bar open to the 16x221 family room There is an optional corner fireplace for this roomThis is a PDF Plan available for Instant Download 4 bedroom, 3 bath home with a dishwasher and stacked washer/dryer Sq Ft 1,800 Building size 600 wide, 500 deep (including decks and steps) Main roof pitch 7/12 Ridge height 22 Wall heights 10 Foundation CMU blocks Lap siding &
1800 sq ft 4 bedroom ranch house plans
1800 sq ft 4 bedroom ranch house plans-4 BHK 1800 SqFt Independent House in Mahalaxmi Properties for Independent House Property for Sale at 99 Lac in Kanuru, Vijayawada Rental Available since Get in touch with Cmr Reality from Square YardsThe kitchen is fully equipped with a microwave, newer gas stove with fullsized oven, refrigerator/freezer, dishwasher, electric kettle, coffee maker
House Plan Craftsman Style With 2400 Sq Ft
Building a home just under 00 square feet, between 1800 and 1900, gives homeowners a spacious house without a great deal of maintenance and upkeep required to keep it looking nice Regardless of the size of their family, many homeowners want enough space for children to have their own rooms or an extra room for a designated office or guest roomTraditional Plan 1,800 Square Feet, 34 Bedrooms, 3 Bathrooms Save More With A PRO Account Designed specifically for builders, developers, and real estate agents working in the home building industry This is a PDF Plan available for Instant Download 60x30 House 4 bedroom, 3 bath home with a cooktop, & wall double oven (or microwave & single oven) Sq Ft 1,800 Building size 600 wide, 500 deep (including decks and steps) Main roof pitch 6/12 Ridge height 23 Wall heights 10 Foundation
4 BHK 1800 SqFt Independent House in Evershine for Independent House Property for Sale at 45 Cr in Borivali West, Mumbai Rental Available since Get in touch with Kevin Patel from Square YardsThis is a PDF Plan available for Instant Download 60x30 House 4 bedroom, 3 bath home with a cooktop, & wall double oven (or microwave & single oven) Sq Ft 1,800 Building size 600 wide, 500 deep (including decks and steps) Main roof pitch 6/12 Ridge height 23 Wall heights 10 Foundation1800 sqft 4 bedroom contemporary villa Kerala home Budget of this house is 42 Lakhs Kerala Traditional House Plans With Photos This House having 2 Floor, 4 Total Bedroom, 5 Total Bathroom, and Ground Floor Area is 1800 sq ft, First Floors Area is 700 sq ft, Total Area is 2500 sq ft Floor Area details
1800 sq ft 4 bedroom ranch house plansのギャラリー
各画像をクリックすると、ダウンロードまたは拡大表示できます
![]() Single Story House Plans 1800 Sq Ft Arts House Plans Farmhouse Ranch House Plans House Plans | ![]() Single Story House Plans 1800 Sq Ft Arts House Plans Farmhouse Ranch House Plans House Plans | ![]() Single Story House Plans 1800 Sq Ft Arts House Plans Farmhouse Ranch House Plans House Plans |
![]() Single Story House Plans 1800 Sq Ft Arts House Plans Farmhouse Ranch House Plans House Plans | ![]() Single Story House Plans 1800 Sq Ft Arts House Plans Farmhouse Ranch House Plans House Plans | ![]() Single Story House Plans 1800 Sq Ft Arts House Plans Farmhouse Ranch House Plans House Plans |
![]() Single Story House Plans 1800 Sq Ft Arts House Plans Farmhouse Ranch House Plans House Plans | ![]() Single Story House Plans 1800 Sq Ft Arts House Plans Farmhouse Ranch House Plans House Plans | ![]() Single Story House Plans 1800 Sq Ft Arts House Plans Farmhouse Ranch House Plans House Plans |
![]() Single Story House Plans 1800 Sq Ft Arts House Plans Farmhouse Ranch House Plans House Plans | ![]() Single Story House Plans 1800 Sq Ft Arts House Plans Farmhouse Ranch House Plans House Plans | ![]() Single Story House Plans 1800 Sq Ft Arts House Plans Farmhouse Ranch House Plans House Plans |
![]() Single Story House Plans 1800 Sq Ft Arts House Plans Farmhouse Ranch House Plans House Plans | ![]() Single Story House Plans 1800 Sq Ft Arts House Plans Farmhouse Ranch House Plans House Plans | ![]() Single Story House Plans 1800 Sq Ft Arts House Plans Farmhouse Ranch House Plans House Plans |
![]() Single Story House Plans 1800 Sq Ft Arts House Plans Farmhouse Ranch House Plans House Plans | ![]() Single Story House Plans 1800 Sq Ft Arts House Plans Farmhouse Ranch House Plans House Plans | ![]() Single Story House Plans 1800 Sq Ft Arts House Plans Farmhouse Ranch House Plans House Plans |
![]() Single Story House Plans 1800 Sq Ft Arts House Plans Farmhouse Ranch House Plans House Plans | ![]() Single Story House Plans 1800 Sq Ft Arts House Plans Farmhouse Ranch House Plans House Plans | ![]() Single Story House Plans 1800 Sq Ft Arts House Plans Farmhouse Ranch House Plans House Plans |
![]() Single Story House Plans 1800 Sq Ft Arts House Plans Farmhouse Ranch House Plans House Plans | ![]() Single Story House Plans 1800 Sq Ft Arts House Plans Farmhouse Ranch House Plans House Plans | ![]() Single Story House Plans 1800 Sq Ft Arts House Plans Farmhouse Ranch House Plans House Plans |
![]() Single Story House Plans 1800 Sq Ft Arts House Plans Farmhouse Ranch House Plans House Plans | ![]() Single Story House Plans 1800 Sq Ft Arts House Plans Farmhouse Ranch House Plans House Plans | Single Story House Plans 1800 Sq Ft Arts House Plans Farmhouse Ranch House Plans House Plans |
![]() Single Story House Plans 1800 Sq Ft Arts House Plans Farmhouse Ranch House Plans House Plans | ![]() Single Story House Plans 1800 Sq Ft Arts House Plans Farmhouse Ranch House Plans House Plans | ![]() Single Story House Plans 1800 Sq Ft Arts House Plans Farmhouse Ranch House Plans House Plans |
![]() Single Story House Plans 1800 Sq Ft Arts House Plans Farmhouse Ranch House Plans House Plans | ![]() Single Story House Plans 1800 Sq Ft Arts House Plans Farmhouse Ranch House Plans House Plans | ![]() Single Story House Plans 1800 Sq Ft Arts House Plans Farmhouse Ranch House Plans House Plans |
![]() Single Story House Plans 1800 Sq Ft Arts House Plans Farmhouse Ranch House Plans House Plans | ![]() Single Story House Plans 1800 Sq Ft Arts House Plans Farmhouse Ranch House Plans House Plans | ![]() Single Story House Plans 1800 Sq Ft Arts House Plans Farmhouse Ranch House Plans House Plans |
![]() Single Story House Plans 1800 Sq Ft Arts House Plans Farmhouse Ranch House Plans House Plans | Single Story House Plans 1800 Sq Ft Arts House Plans Farmhouse Ranch House Plans House Plans | ![]() Single Story House Plans 1800 Sq Ft Arts House Plans Farmhouse Ranch House Plans House Plans |
![]() Single Story House Plans 1800 Sq Ft Arts House Plans Farmhouse Ranch House Plans House Plans | ![]() Single Story House Plans 1800 Sq Ft Arts House Plans Farmhouse Ranch House Plans House Plans | ![]() Single Story House Plans 1800 Sq Ft Arts House Plans Farmhouse Ranch House Plans House Plans |
![]() Single Story House Plans 1800 Sq Ft Arts House Plans Farmhouse Ranch House Plans House Plans | ![]() Single Story House Plans 1800 Sq Ft Arts House Plans Farmhouse Ranch House Plans House Plans | ![]() Single Story House Plans 1800 Sq Ft Arts House Plans Farmhouse Ranch House Plans House Plans |
![]() Single Story House Plans 1800 Sq Ft Arts House Plans Farmhouse Ranch House Plans House Plans | ![]() Single Story House Plans 1800 Sq Ft Arts House Plans Farmhouse Ranch House Plans House Plans | ![]() Single Story House Plans 1800 Sq Ft Arts House Plans Farmhouse Ranch House Plans House Plans |
![]() Single Story House Plans 1800 Sq Ft Arts House Plans Farmhouse Ranch House Plans House Plans | ![]() Single Story House Plans 1800 Sq Ft Arts House Plans Farmhouse Ranch House Plans House Plans | ![]() Single Story House Plans 1800 Sq Ft Arts House Plans Farmhouse Ranch House Plans House Plans |
![]() Single Story House Plans 1800 Sq Ft Arts House Plans Farmhouse Ranch House Plans House Plans | ![]() Single Story House Plans 1800 Sq Ft Arts House Plans Farmhouse Ranch House Plans House Plans | ![]() Single Story House Plans 1800 Sq Ft Arts House Plans Farmhouse Ranch House Plans House Plans |
![]() Single Story House Plans 1800 Sq Ft Arts House Plans Farmhouse Ranch House Plans House Plans | ![]() Single Story House Plans 1800 Sq Ft Arts House Plans Farmhouse Ranch House Plans House Plans | Single Story House Plans 1800 Sq Ft Arts House Plans Farmhouse Ranch House Plans House Plans |
![]() Single Story House Plans 1800 Sq Ft Arts House Plans Farmhouse Ranch House Plans House Plans | Single Story House Plans 1800 Sq Ft Arts House Plans Farmhouse Ranch House Plans House Plans | ![]() Single Story House Plans 1800 Sq Ft Arts House Plans Farmhouse Ranch House Plans House Plans |
Single Story House Plans 1800 Sq Ft Arts House Plans Farmhouse Ranch House Plans House Plans | ![]() Single Story House Plans 1800 Sq Ft Arts House Plans Farmhouse Ranch House Plans House Plans | ![]() Single Story House Plans 1800 Sq Ft Arts House Plans Farmhouse Ranch House Plans House Plans |
Single Story House Plans 1800 Sq Ft Arts House Plans Farmhouse Ranch House Plans House Plans | ![]() Single Story House Plans 1800 Sq Ft Arts House Plans Farmhouse Ranch House Plans House Plans | ![]() Single Story House Plans 1800 Sq Ft Arts House Plans Farmhouse Ranch House Plans House Plans |
Single Story House Plans 1800 Sq Ft Arts House Plans Farmhouse Ranch House Plans House Plans | ![]() Single Story House Plans 1800 Sq Ft Arts House Plans Farmhouse Ranch House Plans House Plans | ![]() Single Story House Plans 1800 Sq Ft Arts House Plans Farmhouse Ranch House Plans House Plans |
![]() Single Story House Plans 1800 Sq Ft Arts House Plans Farmhouse Ranch House Plans House Plans | ![]() Single Story House Plans 1800 Sq Ft Arts House Plans Farmhouse Ranch House Plans House Plans | ![]() Single Story House Plans 1800 Sq Ft Arts House Plans Farmhouse Ranch House Plans House Plans |
![]() Single Story House Plans 1800 Sq Ft Arts House Plans Farmhouse Ranch House Plans House Plans | ![]() Single Story House Plans 1800 Sq Ft Arts House Plans Farmhouse Ranch House Plans House Plans | Single Story House Plans 1800 Sq Ft Arts House Plans Farmhouse Ranch House Plans House Plans |
![]() Single Story House Plans 1800 Sq Ft Arts House Plans Farmhouse Ranch House Plans House Plans | Single Story House Plans 1800 Sq Ft Arts House Plans Farmhouse Ranch House Plans House Plans | ![]() Single Story House Plans 1800 Sq Ft Arts House Plans Farmhouse Ranch House Plans House Plans |
Single Story House Plans 1800 Sq Ft Arts House Plans Farmhouse Ranch House Plans House Plans | ![]() Single Story House Plans 1800 Sq Ft Arts House Plans Farmhouse Ranch House Plans House Plans | ![]() Single Story House Plans 1800 Sq Ft Arts House Plans Farmhouse Ranch House Plans House Plans |
![]() Single Story House Plans 1800 Sq Ft Arts House Plans Farmhouse Ranch House Plans House Plans | ![]() Single Story House Plans 1800 Sq Ft Arts House Plans Farmhouse Ranch House Plans House Plans | ![]() Single Story House Plans 1800 Sq Ft Arts House Plans Farmhouse Ranch House Plans House Plans |
![]() Single Story House Plans 1800 Sq Ft Arts House Plans Farmhouse Ranch House Plans House Plans | ![]() Single Story House Plans 1800 Sq Ft Arts House Plans Farmhouse Ranch House Plans House Plans | ![]() Single Story House Plans 1800 Sq Ft Arts House Plans Farmhouse Ranch House Plans House Plans |
![]() Single Story House Plans 1800 Sq Ft Arts House Plans Farmhouse Ranch House Plans House Plans | ![]() Single Story House Plans 1800 Sq Ft Arts House Plans Farmhouse Ranch House Plans House Plans | ![]() Single Story House Plans 1800 Sq Ft Arts House Plans Farmhouse Ranch House Plans House Plans |
![]() Single Story House Plans 1800 Sq Ft Arts House Plans Farmhouse Ranch House Plans House Plans | ![]() Single Story House Plans 1800 Sq Ft Arts House Plans Farmhouse Ranch House Plans House Plans | Single Story House Plans 1800 Sq Ft Arts House Plans Farmhouse Ranch House Plans House Plans |
![]() Single Story House Plans 1800 Sq Ft Arts House Plans Farmhouse Ranch House Plans House Plans | ![]() Single Story House Plans 1800 Sq Ft Arts House Plans Farmhouse Ranch House Plans House Plans | ![]() Single Story House Plans 1800 Sq Ft Arts House Plans Farmhouse Ranch House Plans House Plans |
![]() Single Story House Plans 1800 Sq Ft Arts House Plans Farmhouse Ranch House Plans House Plans | ![]() Single Story House Plans 1800 Sq Ft Arts House Plans Farmhouse Ranch House Plans House Plans | ![]() Single Story House Plans 1800 Sq Ft Arts House Plans Farmhouse Ranch House Plans House Plans |
![]() Single Story House Plans 1800 Sq Ft Arts House Plans Farmhouse Ranch House Plans House Plans | ![]() Single Story House Plans 1800 Sq Ft Arts House Plans Farmhouse Ranch House Plans House Plans | ![]() Single Story House Plans 1800 Sq Ft Arts House Plans Farmhouse Ranch House Plans House Plans |
![]() Single Story House Plans 1800 Sq Ft Arts House Plans Farmhouse Ranch House Plans House Plans | Single Story House Plans 1800 Sq Ft Arts House Plans Farmhouse Ranch House Plans House Plans |
Welcome home to this delightful 1,800 sq ft plan featuring a detached 2car garage with a 373 sq ft bonus room A covered front porch is just right for a rocking chair or two!60x30 House 4 bedroom 3 Bath 1,800 sqft PDF Floor Plan Model 1 $2999 Free shipping Free shipping Free shipping Picture Information Image not available X 60x30 House 4 bedroom 3 Bath 1,800 sqft PDF Floor Plan Model 2D Custom 841 sqft Modern House Plans 3 Bedroom & 2 Bathroom With CAD & PDF Files New New New
Incoming Term: 4 bedroom 1800 sq ft house plans, 1800 sq ft 4 bedroom house, 1800 sq ft 4 bedroom ranch house plans,




























































































